DESIGN & PLANNING
Dr Myles Dakin approached us looking to relocate his existing practice from a science park to a beautiful rural location on the site of an old dairy farm in Hertfordshire.
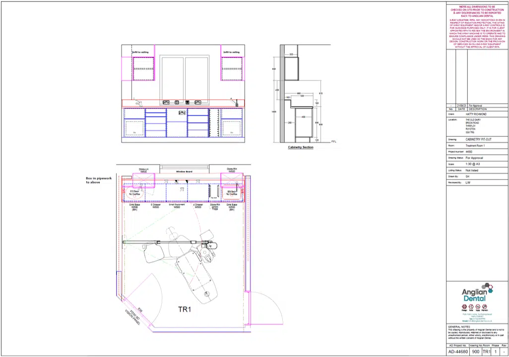
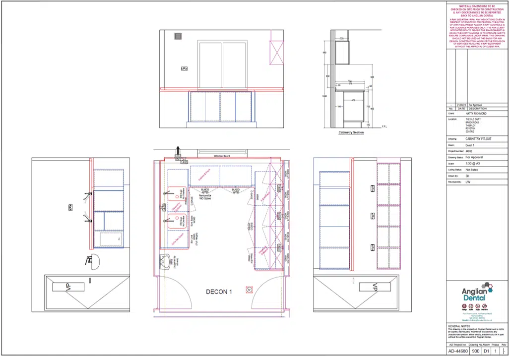
It took careful design consideration to accommodate four surgeries of equipment, a plant room, two decontamination rooms and a lab over two floors.
BUILDING WORKS
Anglian Dental were contracted to complete the end-to-end building and fit-out works.
The project management team had regular meetings with Dr Dakin to ensure it stayed on program and within budget.
The project took 3 months from commencement to practical completion.
EQUIPMENT & CABINETRY
Dr Dakin chose the Belmont Eurus S8 E chair for all four surgeries. The chairs all have luxury stitched ultra-soft upholstery in colours ‘Agave’ and ‘Coastal’ as well as the Belmont Phot-X II S DC 505WK Touch wall-mounted X-ray unit. We supplied and installed all cabinetry at the new practice.
We also installed the Cattani TurboSmart B suction pump and Durr Dental Trio oil-free compressor at the practice.






